Home
PHOTOGRAPHY
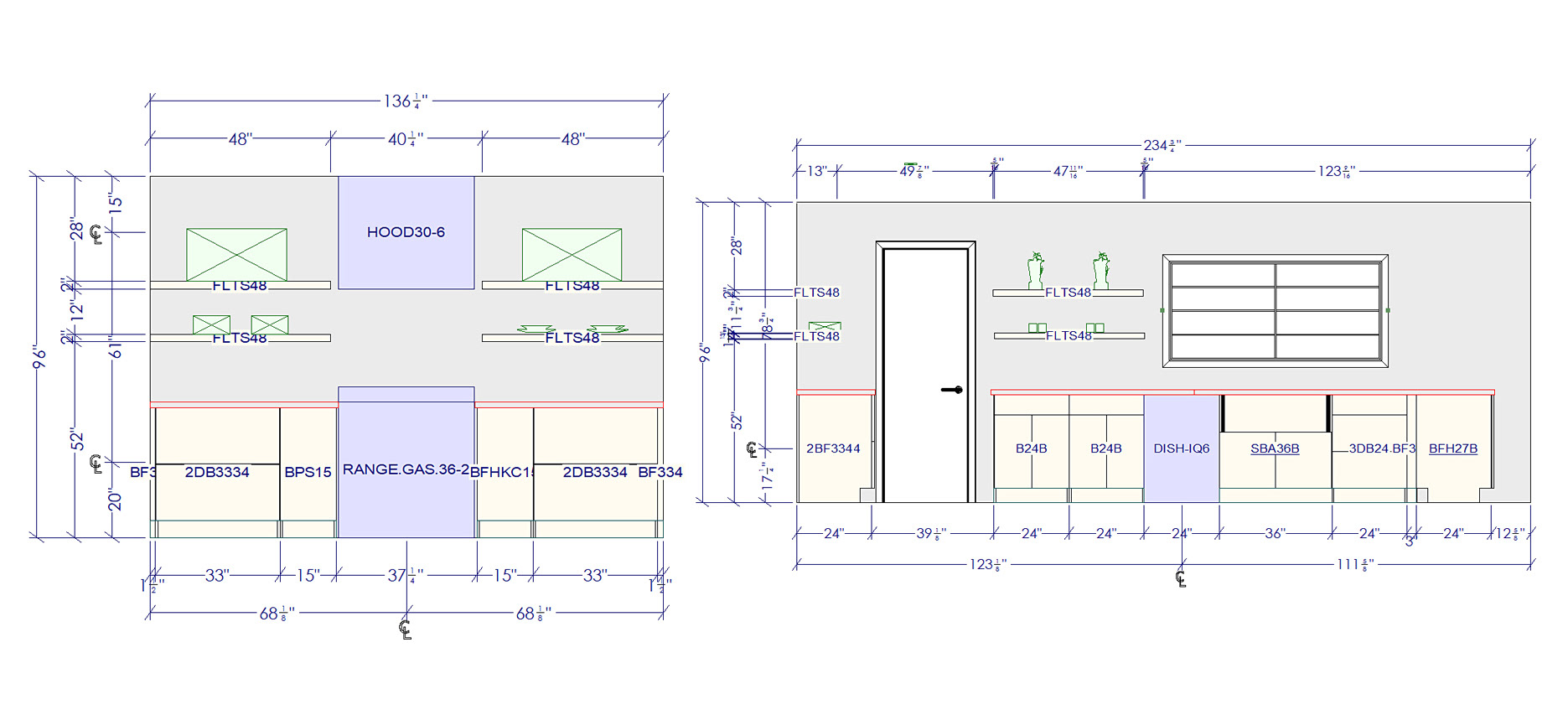
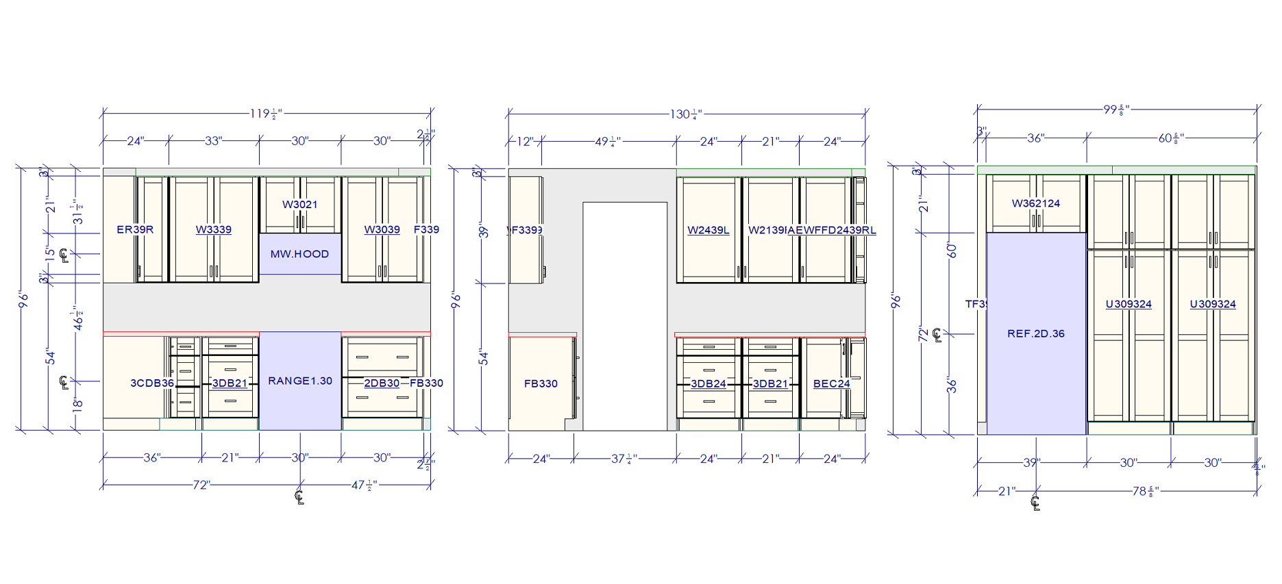
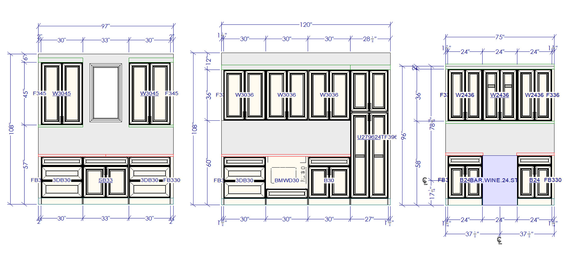
2020 Design
GRAPHIC DESIGN
VIDEO
CONTACT
Jaysun McMillin
Home
PHOTOGRAPHY
2020 Design
GRAPHIC DESIGN
VIDEO
CONTACT

2020 Design

↑Back to Top
Powered by Adobe Portfolio